Que ce soit pour une construction neuve, une rénovation ou même la réalisation d’un aménagement paysager, il est impératif d’avoir des plans. Ceux-ci comprennent toutes les informations nécessaires à la réalisation des travaux telles que les mesures exactes, les détails d’assemblage et même les précautions à prendre lors des travaux. Les matériaux et leurs dimensions y sont explicitement inscrits afin d’assurer l’utilisation de produit de bonne qualité.

Implantation

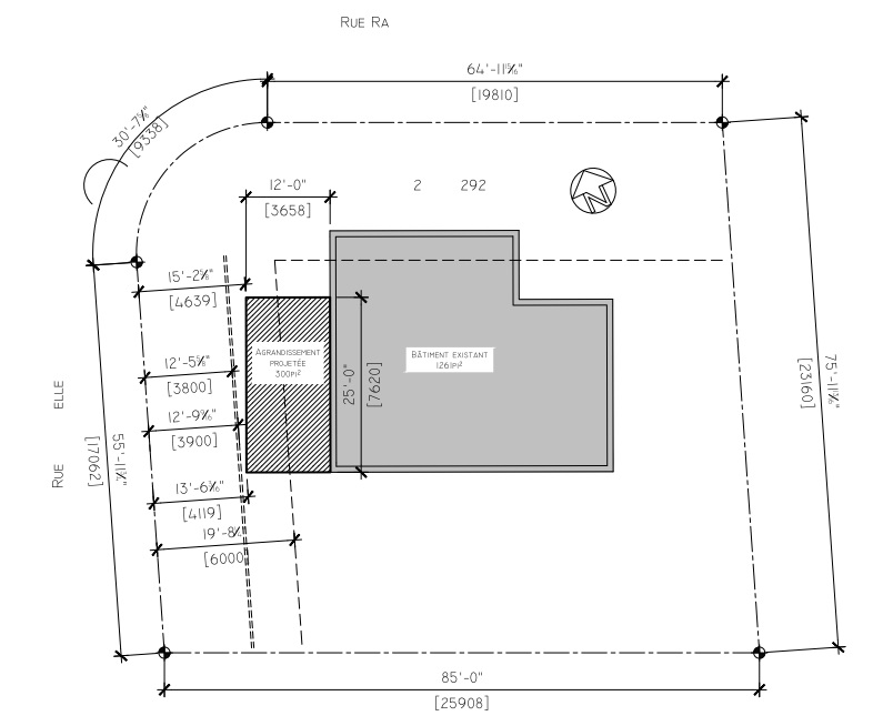
Schéma montrant la localisation et les dimensions des constructions par rapport aux éléments existants sur le terrain.

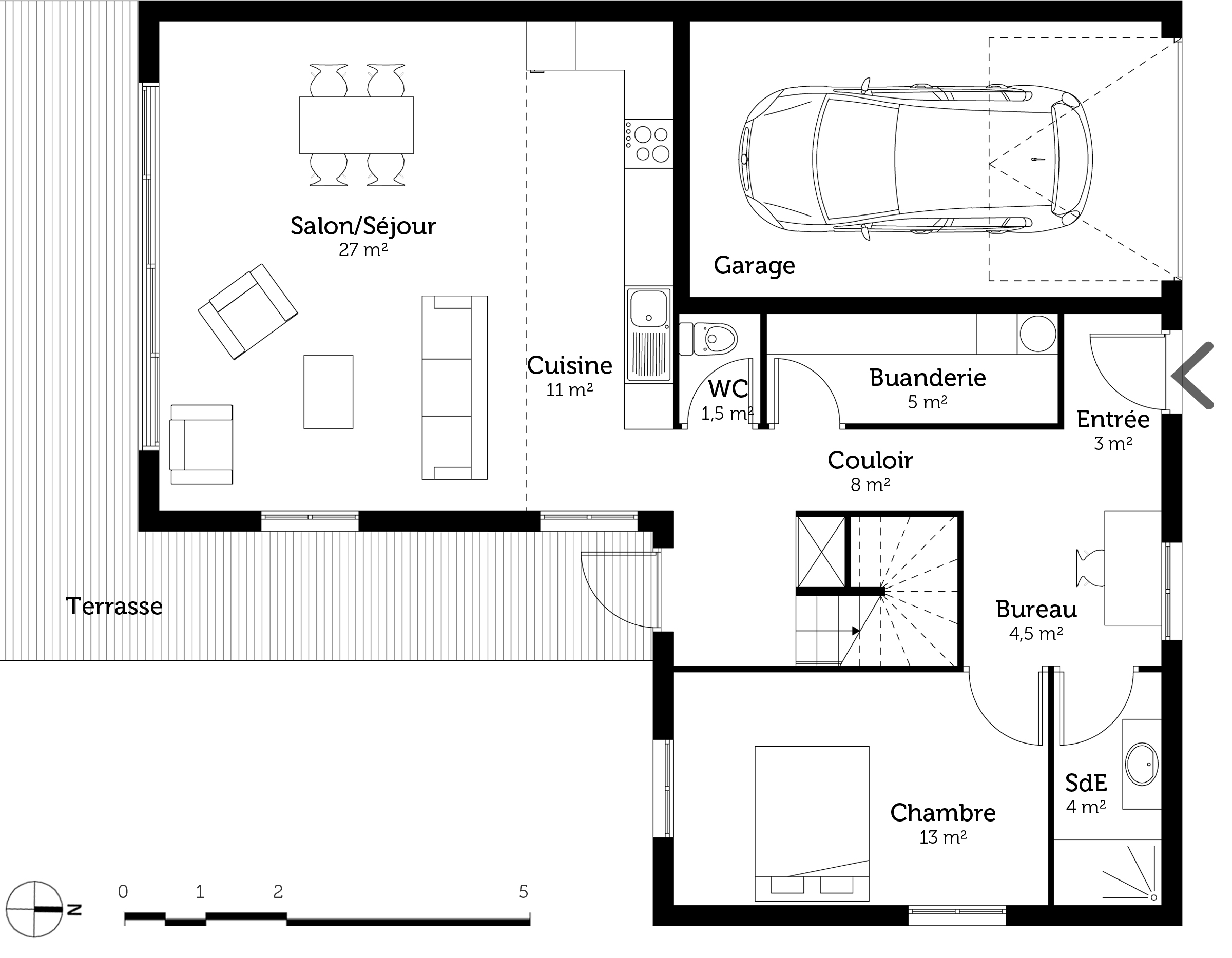
Vue en plan des étages et de la toiture

Élévations (façades)

Coupes de murs et détails

Les matériaux et leurs dimensions y sont explicitement inscrits afin d’assurer l’utilisation de produit de bonne qualité.